Oferta nr SOL-DS-146789

cena 2650000 zł
rodzaj Dom
typ Sprzedaż
lokalizacja: Warszawa, Wawer, VI Poprzeczna
powierzchnia 207.00 m2
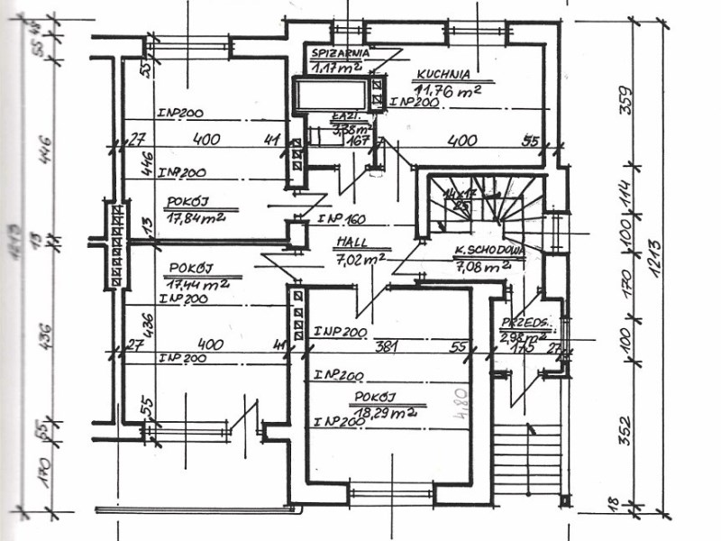
Do sprzedaży bliźniak o pow. 270 m 2. Położony na działce o pow. ok. 700 m 2.  Dom odnowiony i odświeżony, do zamieszkania. Dom cichy, ogród kameralny, cichy, sąsiedztwo: -Dwie prywatne posesje, oraz biblioteka która w weekend jest nieczynna.  Dodatkowe atuty nieruchomości: -Nowy piec gazowy. -Ogrzewana podłoga w salonie. -Nowa rozdzielnia elektryczna -Nowe rozprowadzenie instalacji wodnej.  -Całe podpiwniczenie jasne, wszystkie pomieszczenia maja okna.  Dom posiada 3 kondygnacje  1) Podpiwniczenie  o pow. 72,62 m 2.  Znajdują się tam:  4 pomieszczenia i wymiarach 17, 36 m 2 11, 55 m 2, 16,96 m 2, 18, 52 m 2 4,41 m 2 6,86 m 2 klatka schodowa o pow. 6,96 m 2 2) Parter o pow. ok 86 m 2 Na parterze rozmieszczone są: -Pokój 18,29 m 2 -Pokój 17, 44 m 2 -Pokój 17,84 m 2 -Kuchnia 11,79 m 2 -Łazienka 3,38 m 2 -Hall 7,02 m 2 -Klatka schodowa z przedsionkiem o pow. 10,06 m 2 3) Piętro o pow. 49,06 m 2 Rozmieszczone pomieszczenia na piętrze: -Pokój 18, 29 m 2 -Pokój 11,76 m 2 -Łazienka 4,91 -Hall 7,02 m 2 -Klatka schodowa 7,08 m 2 Na posesji znajduje się wolnostojący garaż z miejscem na dwa samochody.  8 minut do stacji SKM Anin Blisko do szkoły podstawowej, szkoły średniej.  W bliskim otoczeniu bogata dobrze rozwinięta infrastruktura: -Sklepy, przychodnie lekarskie, kluby sportowe, restauracje.   

dane agenta Teresa Proszkiewicz
licencja: 19021
605870122
wyślij email

Wyszukiwarka

Mieszkania na sprzedaż

Mieszkania na wynajem

Domy na sprzedaż

Domy na wynajem

Działki na sprzedaż

Działki na wynajem

Lokale na sprzedaż

Lokale na wynajem

Hale na sprzedaż

Hale na wynajem

Obiekty na sprzedaż

Obiekty na wynajem

O firmie

Kontakt

przejdź do pełnej wersji strony
zobacz także
© Sołtan mobilna
wykonanie: Aplikacje internetowe Galactica